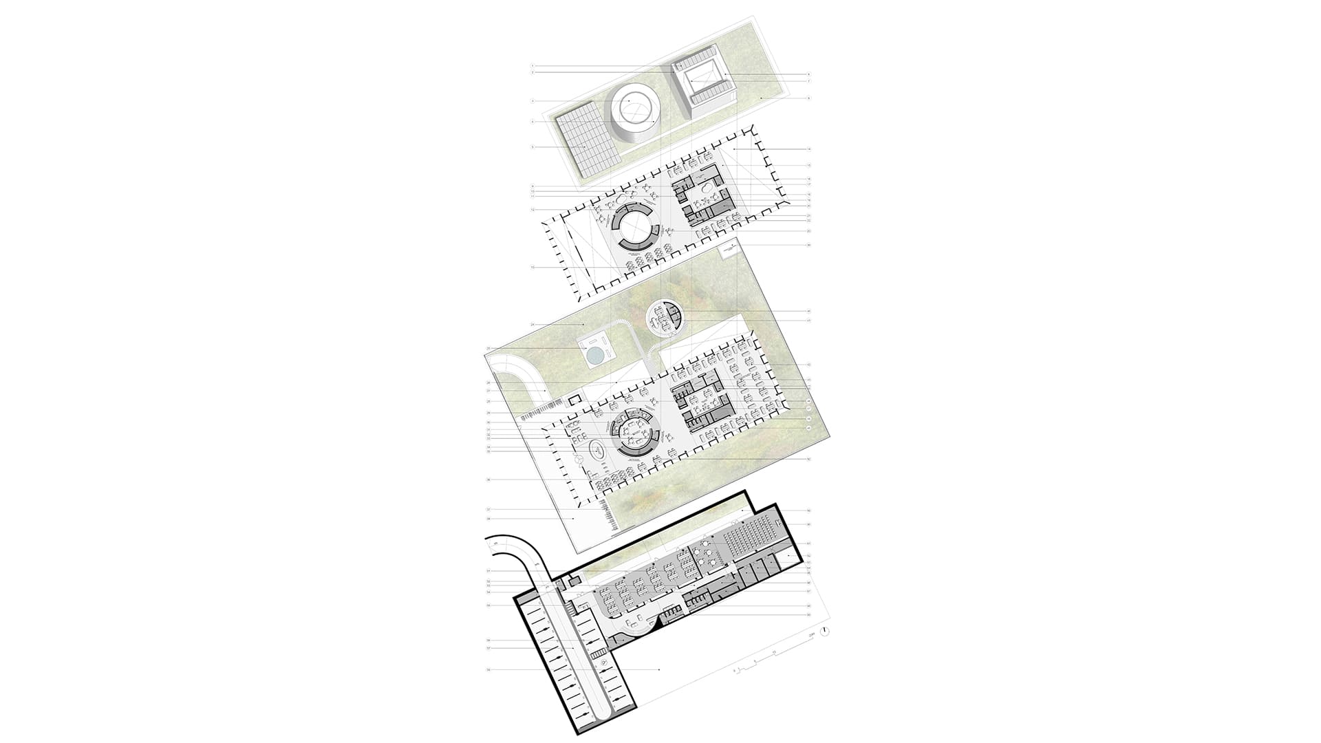
Proyecto: Biblioteca municipal de las Tablas
cliente: AYUNTAMIENTO DE MADRID
ubicación: LAS TABLAS
fecha proyecto/ fecha construcción: DICIEMBRE 2018
superficie: 2200 m2 CONSTRUIDOS
arquitectos: LUIS MUÑIZ
A partir del objetivo declarado en la convocatoria del Concurso, se propone un proyecto arquitectónico que evolucione desde el concepto tradicional de la Biblioteca como “templo de atesoramiento de colecciones bibliográficas” hacia una concepción más abierta a la participación ciudadana en la cultura que rodea al mundo del libro.
Y como símbolo de esa idea motriz, se eligió el lema de LA CASA DE PAPEL, que resume los dos conceptos básicos sobre los que pivota el proyecto: casa como lugar de encuentro, convivencia y relación social, sin barreras de clase, género ni condición física, y papel como referente de la cultura escrita en la conciencia colectiva, hoy abierta a otros soportes, como los digitales, gracias a la evolución tecnológica, y a una ilimitada gama de conocimientos e información más complejos que el libro tradicional.
En consonancia con ello, el proyecto propone un diseño moderno, cómodo y funcional, a la vez que eficiente desde un punto de vista medioambiental y respetuoso con el entorno, acorde con el ámbito urbano en el que se implanta: un barrio de nueva construcción —aún muy reciente—, Las Tablas, un PAU al Norte de Madrid, que demanda la creación de espacios públicos, equipamiento y servicios que promuevan la relación social y contribuyan a vertebrarlo, como en el caso de la Biblioteca Municipal que nos ocupa, en el que ya se levantan notables proyectos arquitectónicos singulares, como el Edificio Vela, sede del BBVA.